3. Gerätehaus in Pfützthal
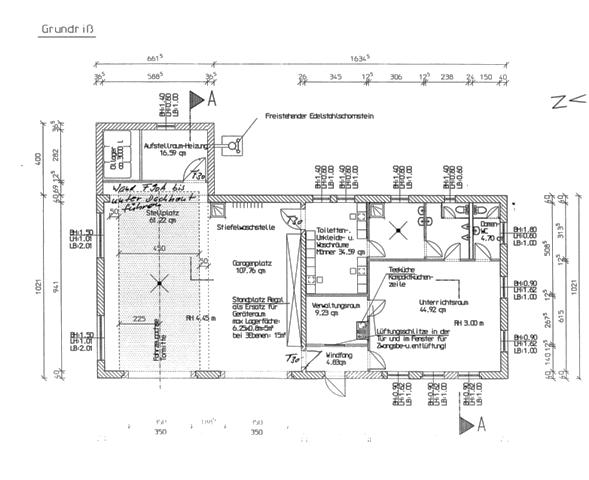
Im Jahr 1996 wurde mit dem Umbau einer ehmaligen Fahrzeughalle der LPG zum Gerätehaus begonnen.
Aus zwei der vier Fahrzeughallen entstand der Sozialtrakt mit Umkleideräumen, Küche, Schulungsraum und Sanitäreinrichtungen.
Die beiden anderen wurden zu Fahrzeughallen für unsere Einsatzfahrzeuge umgebaut.
1997 war der Umbau schließlich beendet und das neue Gerätehaus wurde an die Feuerwehr übergeben.



